The Best Barndominium Floor Plans: Our Favorite 20 Designs
By Courtney Pittman
Nothing screams timeless style like barndominium floor plans. These on-trend designs will wow you with big porches, island kitchens, and lots of storage. Think generous garages with shop areas. See our roundup of the best barndominium floor plans below.
Discover our collection of barndominium floor plans here.
Small Barndo Plan
Small Barndo Plan - Front Exterior
Small Barndo Plan - Main Level
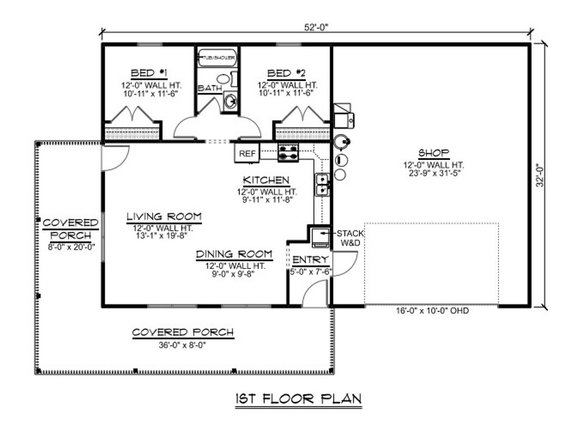
If you want a small barndominium floor plan, this is your sign. We love the wraparound porch and the metal roof. Inside, the layout feels breezy and modern with effortless flow between the main living areas.
Three bedrooms wait at the back of the plan for extra privacy. The laundry room sits nearby. Don’t miss the two-car garage.
Simple Footprint
Simple Footprint - Front Exterior
A four-corner footprint makes this simple barn-inspired design a builder-friendly choice. A fireplace warms the open great room, while the dining area and the island kitchen wait close by. The primary suite shines with a spacious wet room and a walk-in closet. Two more bedrooms share a hall bath.
Generous Mudroom
Generous Mudroom - Front Exterior
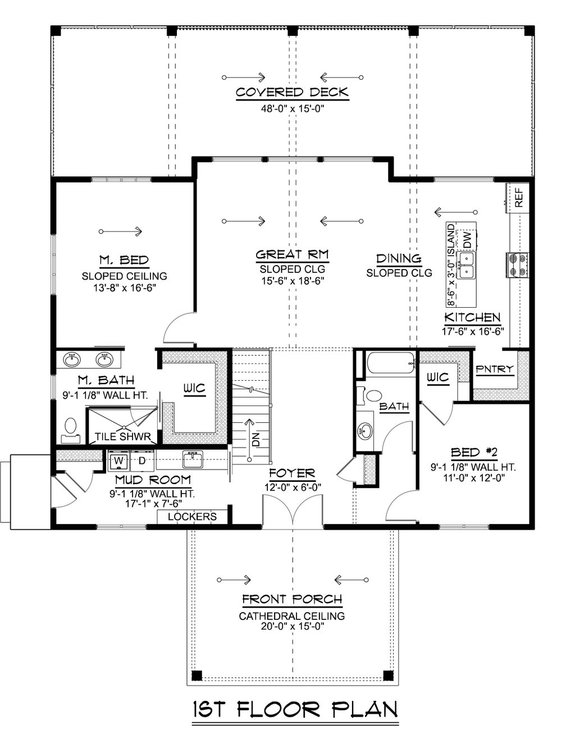
Here’s a barndominium plan under 2,000 square feet. The exterior is decorated with a gable roof and a cute front porch. Inside, the kitchen island features an eating bar that overlooks the dining area and the great room. Keep groceries tidy in the walk-in pantry.
Both bedrooms keep you organized with walk-in closets (including the primary suite). A mudroom with lockers is a welcome detail.
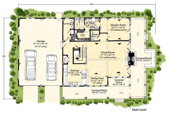
Versatile Plan with Three-Car Garage
Versatile Plan with Three-Car Garage - Front Exterior
Versatile Plan with Three-Car Garage - Main Level
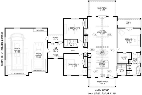
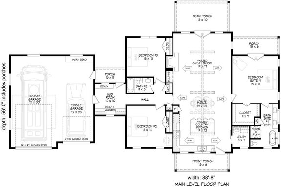
This three-bedroom barndominium plan is the perfect blend between classic and contemporary. A metal roof covers the wraparound front porch. An impressive kitchen island opens to the fireplace-warmed great room. A vaulted ceiling creates drama.
Here’s a smart amenity: the extra-big pantry includes an island. The primary suite features direct access to the laundry room and a spa-like bathroom. A guest room and a studio offer versatility. Don’t miss the three-car garage and the super-spacious grilling porch out back.
Super-Open Layout
Super-Open Layout - Front Exterior
Super-Open Layout - Main Level
The vaulted kitchen gives you lots of counter space and a big island that overlooks the dining area and the great room. The primary suite enjoys privacy on the right side of the plan. Two additional bedrooms and a full bath wait on the left.
Check out the mudroom with a bench. Front and rear porches provide shaded comfort.
Garage Apartment Plan with Barn Style
Garage Apartment Plan with Barn Style - Front Exterior
Garage Apartment Plan with Barn Style - Main Level
Garage Apartment Plan with Barn Style - Upper Level
Looking to build an ADU (accessory dwelling unit)? Check out this garage apartment plan. The ground floor gives you a two-car garage with room for an RV and a storage closet under the stairs. Upstairs, a vaulted game room opens up all kinds of possibilities. Two bedroom suites (each with a walk-in closet) complete this plan.
Room for an RV
Room for an RV - Front Exterior
Here’s a barndominium floor plan that stands out with a welcoming front porch, a metal gable roof, and board-and-batten siding. Inside, the country kitchen takes center stage with a generous island. The vaulted dining area and the great room sit nearby.
The primary suite shows off a private porch and an impressive bathroom. The two-car garage features RV storage and a workbench. You’ll appreciate the smart built-ins (like lockers and a bench) in the mudroom.
Barndo Plan with Wraparound Porch
Barndo Plan with Wraparound Porch - Front Exterior
Barndo Plan with Wraparound Porch - Main Level
A barn-inspired floor plan with a wraparound porch? Yes please. We are swooning over this four-bedroom design. The layout inside is contemporary and bright with an open floor plan and a vaulted ceiling. The kitchen island is ready for casual meals with a level eating bar. Check out the cabinets and the built-in shelves in the pantry.
There’s plenty of room for organization in the generous laundry room, which features lots of counter space. The three-car garage boasts a storage closet. Other cool details include a mudroom with lockers and a wood-burning fireplace.
Four-Bedroom Barndo Design
Four-Bedroom Barndo Design - Front Exterior
Four-Bedroom Barndo Design - Main Level
Here’s a four-bedroom barndo design that’s all about modern comfort. A huge wraparound porch delivers classic curb appeal and offers lots of room for outdoor living. The free-flowing layout between the kitchen, the dining area, and the great room creates an airy vibe.
Two bedrooms share a bathroom on the left side of the plan, while the primary suite takes up space on the right. Don’t miss the guest room or the carport.
Barndominium Plan with In-Law Suite
Barndominium Plan with In-Law Suite - Front Exterior
Barndominium Plan with In-Law Suite - Main Level
Barndominium Plan with In-Law Suite - Upper Level
Spacious and modern, this barndominium floor plan gives you a relaxed layout on one convenient level. There’s plenty of counter space in the kitchen, along with a large pantry and an island. Relax on the covered wraparound porch.
The primary suite sits at the back of the plan and impresses with an extra-big closet and a private office. The laundry room waits nearby. An in-law suite resides on the right side of the plan and features an island kitchen, a dining area, a great room, a bedroom suite, and an office. Check out the versatile loft.
Loving any of the plans you're seeing? Register now to easily save and return to your favorites!
Two-Bedroom Garage Apartment Plan
Two-Bedroom Garage Apartment Plan - Front Exterior
Two-Bedroom Garage Apartment Plan - Main Level
Two-Bedroom Garage Apartment Plan - Upper Level
Hello gorgeous! A metal gable roof and cool barn door details deliver farmhouse curb appeal to this barndominium plan. The first floor boasts an enormous garage that features a shop and a tack room. The main living areas also reside on this level (including the two-story great room).
Relax on the covered wraparound porch. Upstairs, you’ll find a bedroom suite, an additional bedroom, a full bath, and a storage closet.
Barndo Plan with Sunroom
Barndo Plan with Sunroom - Front Exterior
Barndo Plan with Sunroom - Main Level
We are head-over-heels for this barndominium floor plan. We love the wide front porch and the gabled dormer. Oh, and the two-car garage. The super-open layout features an island kitchen that opens to the living room/dining area. Note the generous pantry.
A study sits near the front of the plan. The primary suite rests at the back of the plan and gives you a spacious walk-in closet and a storm room. Our favorite part? The bright sunroom.
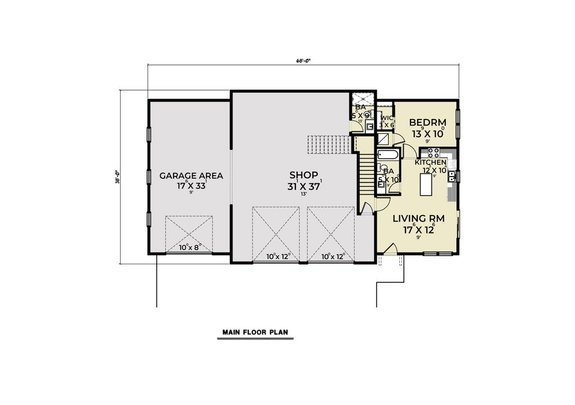
Garage Plan with Shop
Garage Plan with Shop - Front Exterior
Garage Plan with Shop - Main Level
Garage Plan with Shop - Upper Level
This barndominium garage apartment plan catches your eye with country curb appeal. The three-car garage gives you a shop and a bathroom with a shower. Inside, an open floor plan makes the space feel larger than it is. The kitchen island is ready for relaxed meals.
A walk-in closet in the bedroom is a nice touch. On the second level, a bonus room could become a home office.
Looking for garage plans with apartments? Explore more here.
U-Shaped Kitchen
U-Shaped Kitchen - Front Exterior
U-Shaped Kitchen - Upper Level
There’s something so timeless about this barndominium floor plan. Maybe it’s the covered wraparound porch or the metal gable roof. Either way, we are in love. The U-shaped kitchen flows nicely into the great room and features an eating bar.
The primary suite sits on the first level (making it easy to age in place) and shows off private access to the covered porch. Two bedrooms and a full bath complete the second level. Our favorite part: the two-sided fireplace between the great room and the wraparound porch.
Flexible Game Room
Flexible Game Room - Front Exterior
Flexible Game Room - Main Level
Flexible Game Room - Upper Level
Sleek curb appeal and a layout inside to match? You got it. Overlooking the living room and the dining area, the generous kitchen island features an eating bar. French doors open to the wide front porch. The primary bedroom enjoys privacy on the right side of the plan and shines with a large closet, a walk-in shower, and a separate tub.
Two secondary bedrooms share a full bath on the left. Upstairs, you’ll find an additional bedroom, along with a flexible game room.
One-Story Plan with Breezeway
One-Story Plan with Breezeway - Front Exterior
One-Story Plan with Breezeway - Main Level
Front and rear porches offer plenty of room for outdoor living, while a semi-open-concept floor plan waits inside. A double-sided fireplace sits between the vaulted great room and the dining area. The up-to-date pantry gives you a sink and lots of built-in shelves.
Nearby, a mudroom with lockers gives you the perfect excuse to keep items tidy. For extra convenience, the primary suite features direct access to the laundry room. Here’s a thoughtful touch: a breezeway connects to the two-car garage.
Seamless Flow Throughout
Seamless Flow Throughout - Front Exterior
Seamless Flow Throughout - Main Level
From the clean-lined exterior to the seamless layout inside, this barndominium plan has our attention. An island in the kitchen serves the living room. The main-level primary suite impresses with a sizable closet and a modern shower. Two more bedrooms share a hall bath on the second level.
Rustic Curb Appeal
Rustic Curb Appeal - Front Exterior
Rustic Curb Appeal - Main Level
Need room to store an RV? You’re in luck. This one-story barndominium floor plan gives you a three-car garage with RV storage. We love the wraparound porch. The family room opens to the island kitchen and the dining area.
You’ll enjoy the extra-spacious closet in the primary suite. Two bedrooms share a full bath at the back of the plan.
Garage Plan with Pocket Office
Garage Plan with Pocket Office - Front Exterior
Garage Plan with Pocket Office - Main Level
Garage Plan with Pocket Office - Upper Level
Whether you’re looking to build an accessory dwelling unit or a primary home, this garage apartment plan is sure to wow you. The first floor sports a four-car garage and a covered storage area. On the second level, the island kitchen is ready for casual hangs.
The dining nook and the family room sit close by. Two bedrooms share a bathroom on the left side of the plan and each features a walk-in closet. A pocket office and a walk-in pantry are welcome amenities. A terrace offers a place for outdoor enjoyment.
Budget-Friendly Design
Budget-Friendly Design - Front Exterior
Budget-Friendly Design - Main Level
Check out this practical, budget-friendly design. Clocking in at 896 square feet, this barndominium floor plan boasts an open layout that makes it feel bigger than it is. Sit back and relax on the wraparound porch.
Here’s a fun detail: the two-car garage features a shop area. Two bedrooms share a hall bath at the back of the plan.



