BLOG
Our Favorites + Building Knowledge and Materials
Home>Articles

1,500 Sq. Ft. Barndominium Floor Plans

1,500 Sq. Ft. Barndominium Floor Plans
See timeless beauty with 1,500 sq. ft. barndominium floor plans.

1,500 Sq. Ft. Barndominium Floor Plans

By Courtney Pittman

Thinking about a barndominium plan? Don't want too much square footage? We've got you covered with these home layouts, each with around 1,500 square feet of heated living space. Special details include clean-lined layouts, light-filled interiors, and functional garages/shops with lots of storage. Oh, and (of course) practical porches. Explore our roundup of 1,500 sq. ft. barndominium floor plans below.

Want more? Discover our collection of barndominium floor plans here.

Barndominium Floor Plan with Wraparound Porch Barndominium Floor Plan with Wraparound Porch Barndominium Floor Plan with Wraparound Porch - Front Exterior

Barndominium Floor Plan with Wraparound Porch Barndominium Floor Plan with Wraparound Porch - Main Level

A wraparound porch is the star of this bright and modern barndominium floor plan. We love the classic metal siding. The layout inside is thoughtfully designed, with the great room, the dining area, and the kitchen in one open space.

An extra-spacious closet (which features direct access to the laundry room) takes center stage in the primary suite. Down the hall, a secondary bedroom also boasts a walk-in closet. Don’t miss the back porch just off the kitchen.

Three-Car Garage and Carport Three-Car Garage and Carport Three-Car Garage and Carport - Front Exterior

Three-Car Garage and Carport Three-Car Garage and Carport - Garage Level

Three-Car Garage and Carport Three-Car Garage and Carport - Upper Level

This rustic design gives you a four-corner footprint with a metal gable roof. On the first floor, a three-car garage gives you loads of room for a workshop. The carport and the covered storage are handy details.

Upstairs, the breezy layout includes a family room, an island kitchen, and a dining area. Get work done in the nearby pocket office. A bedroom suite rests on the left side of the plan. Nice weather? Relax on one of the two terraces or the covered patio.

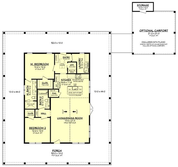
Two-Bedroom Barndo Design Two-Bedroom Barndo Design Two-Bedroom Barndo Design - Front Exterior

Two-Bedroom Barndo Design Two-Bedroom Barndo Design - Main Level

Ready to relax? A porch wraps around the entire perimeter of this barndominium plan. The thoughtful layout inside includes a vaulted great room that opens to the well-placed kitchen island, which features an eating bar. Shelving in the pantry is a handy touch.

Nestled between the mudroom (with lockers) and the laundry room, a pocket office boasts a built-in desk. Two bedrooms (including the private primary suite) reside on the left side of the plan. Check out the optional carport with storage.

Modern Barndominium Plan Modern Barndominium Plan Modern Barndominium Plan - Front Exterior

Modern Barndominium Plan Modern Barndominium Plan - Main Level

Get modern style with this barndominium floor plan. A wide front porch gives you a relaxing place to unwind, while a shed roof delivers a contemporary touch. An open floor plan creates a seamless flow between the great room, the dining area, and the island kitchen.

Keep groceries and items organized in the big pantry. We are drooling over the extra-large shower in the primary suite. The laundry room conveniently waits nearby.

Loving any of the plans you're seeing? Register now to easily save and return to your favorites!

Barndominium Plan with Shop Barndominium Plan with Shop Barndominium Plan with Shop - Front Exterior

Barndominium Plan with Shop Barndominium Plan with Shop - Main Level

Here’s a barndominium floor plan that grabs your attention with a spacious garage/shop. In the kitchen, a raised eating bar serves the great room and is handy for quick meals. The primary suite offers a generous closet and dual sinks. Two additional bedrooms share a full hall bath.

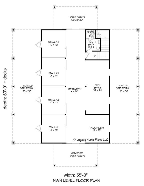
Two-Story Barndo Plan with Stalls Two-Story Barndo Plans with Stalls Two-Story Barndo Plan with Stalls - Front Exterior

Two-Story Barndo Plan with Stalls Two-Story Barndo Plan with Stalls - Main Level

Two-Story Barndo Plan with Stalls Two-Story Barndo Plan with Stalls - Upper Level

It doesn’t get much more barn-inspired than this: four stalls open to a side porch on the first level. A tack room and a flex space wait nearby. On the second level, a vaulted ceiling draws the eye up in the main living areas.

An open floor plan makes great use of square footage. Two closets shine in the primary suite, while double doors open to the deck.

Plenty of Storage Plenty of Storage Plenty of Storage - Front Exterior

Plenty of Storage Plenty of Storage - Main Level

Plenty of Storage Plenty of Storage - Upper Level

Here’s a barndominium plan that is thoughtfully designed. At the heart of the home, the kitchen includes an island with a snack bar that overlooks the vaulted great room. We love the corner gas fireplace.

Storage options include: a walk-in closet next to the laundry room, a walk-in closet in the primary suite, a two-car garage, a mudroom, storage under the stairs, and a carport.

Two-Bedroom Plan with Pocket Office Two-Bedroom Plan with Pocket Office Two-Bedroom Plan with Pocket Office - Front Exterior

Two-Bedroom Plan with Pocket Office Two-Bedroom Plan with Pocket Office - Garage Level

Two-Bedroom Plan with Pocket Office Two-Bedroom Plan with Pocket Office - Upper Level

Hello curb appeal! This barndominium floor plan impresses with board-and-batten siding, stone accents, and a metal gable roof. The first level keeps you organized with a four-car garage and covered storage.

Check out the island and the generous walk-in pantry in the kitchen. Get work done in the handy pocket office. Walk-in closets highlight both bedrooms. Two covered patios and a terrace offer outdoor relaxation.

Explore more barndominium floor plans.

1,500 Sq. Ft. Barndominium Floor Plans

$1.99 Build Cost Reports!