BLOG
Our Favorites + Building Knowledge and Materials
Home>Articles

Barndominium with Walkout Basement Plans

Barndominium with Walkout Basement Plans
Enjoy these barndominium with walkout basement plans.

Barndominium with Walkout Basement Plans

By Courtney Pittman

Building on a sloping lot? Consider it handled. Designed to flex over time, barndominium with walkout basement plans offer maximum versatility and ideal indoor/outdoor flow on the lower level. Look for light-filled interiors, open island kitchens, smart storage solutions, and more. Enjoy the fun and functional lower levels of these designs.

Want more? Explore our collection of barndominium with walkout basement plans here.

Barn-Inspired Plan with Shop Barn-Inspired Plan with Shop Barn-Inspired Plan with Shop - Front Exterior

Barn-Inspired Plan with Shop Barn-Inspired Plan with Shop - Main Level

Barn-Inspired Plan with Shop Barn-Inspired Plan with Shop - Upper Level

Barn-Inspired Plan with Shop Barn-Inspired Plan with Shop - Lower Level

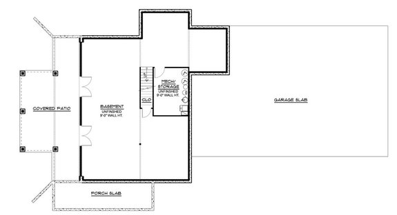
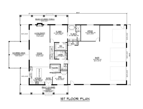
Up-to-date and spacious, this barn-inspired house plan gives you lots of room for outdoor living with two wraparound porches, a covered deck, and a covered patio. You’ll find ample room for storage in the three-car garage, which features a shop and an office. In the kitchen, an island easily serves the dining area and the great room.

The primary suite enjoys privacy at the back of the main level. Upstairs, both secondary bedrooms feature walk-in closets and share a hall bath. A loft waits nearby, along with loft storage space. The options are endless in the basement, where a big open space could become a variety of things.

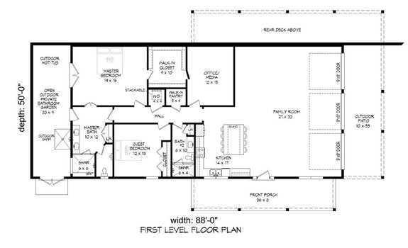
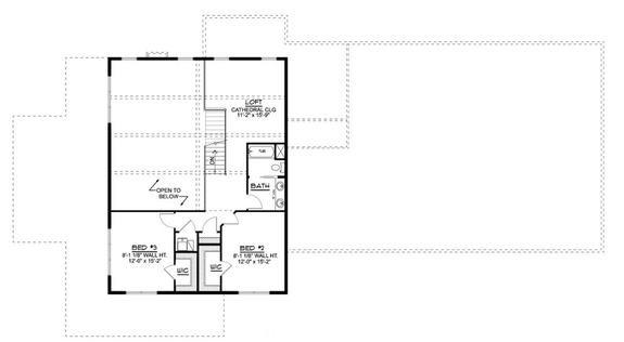
Private Outdoor Bathroom Garden Private Outdoor Bathroom Garden Private Outdoor Bathroom Garden - Front Exterior

Private Outdoor Bathroom Garden Private Outdoor Bathroom Garden - Main Level

Private Outdoor Bathroom Garden Private Outdoor Bathroom Garden - Upper Level

We are swooning over this stunning barndominium floor plan. The primary suite impresses with a spa-like bathroom, a walk-in closet, and a private outdoor bathroom garden (which features an outdoor shower and a hot tub). The heart of the home is the open family room and the big kitchen, where an island seats up to eight.

Three garage doors open to the large patio, creating effortless indoor/outdoor living. The second level hosts five additional bedrooms and three full baths. A second family room, dining area, and island kitchen wait close by.

Barndominium Plan with Wraparound Porch Barndominium Plan with Wraparound Porch Barndominium Plan with Wraparound Porch - Front Exterior

Barndominium Plan with Wraparound Porch Barndominium Plan with Wraparound Porch - Main Level

Barndominium Plan with Wraparound Porch Barndominium Plan with Wraparound Porch - Upper Level

Barndominium Plan with Wraparound Porch Barndominium Plan with Wraparound Porch - Lower Level

A porch wraps around the entire perimeter of this barndominium plan. On the main level, the kitchen boasts an island that looks out to the vaulted dining area and the great room. A guest room, a hall bath, and the laundry room sit on this level.

The primary suite takes up space on the second level and enjoys extra privacy. Don’t miss the big walk-in closet. On the lower level, a game room could become a home office or a hobby space. Two more bedrooms and a bathroom round out this floor.

Under 2,000 Square Feet Under 2,000 Square Feet Under 2,000 Square Feet - Front Exterior

Under 2,000 Square Feet Under 2,000 Square Feet - Main Level

Under 2,000 Square Feet Under 2,000 Square Feet - Upper Level

Under 2,000 Square Feet Under 2,000 Square Feet - Lower Level

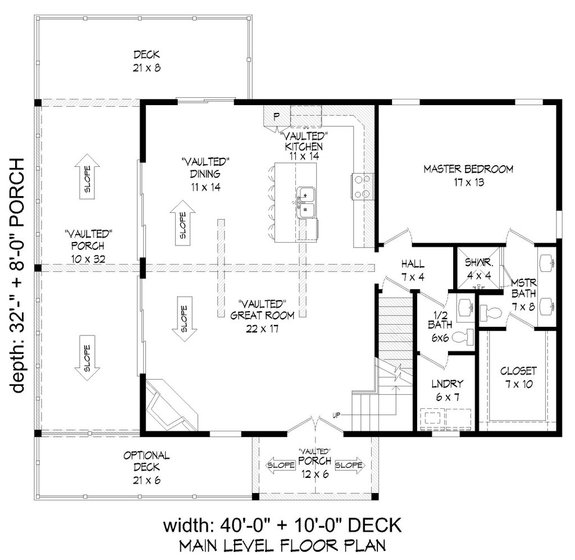
Clocking in at just 1,770 square feet (not including the lower level), this plan would fit nicely on a small lot. The main living area is open to the island kitchen and feels bright and airy thanks to the vaulted ceiling. Two sets of sliding glass doors open to the porch and bring the outdoors in.

The main-level primary suite gives you a generous walk-in closet. A laundry room adds convenience nearby. Upstairs, two bedrooms share a full bath. Need room to grow? Finish the lower level, which offers flexibility with an open family room, a bedroom (with a walk-in closet), and a bonus room.

Loving any of the plans you're seeing? Register now to easily save and return to your favorites!

Barndominium with Four-Car Garage Barndominium with Four-Car Garage Barndominium with Four-Car Garage - Front Exterior

Barndominium with Four-Car Garage Barndominium with Four-Car Garage - Main Level

Barndominium with Four-Car Garage Barndominium with Four-Car Garage - Upper Level

Barndominium with Four-Car Garage Barndominium with Four-Car Garage - Lower Level

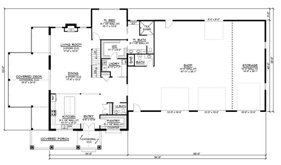
Here’s a timeless barndo house plan with thoughtful amenities. Enjoy views on the covered porch and the covered deck. The island kitchen serves the spacious dining area and the fireplace-warmed living room. Located on the main level, the primary suite offers direct access to the laundry room.

Check out the four-car garage and the big shop space. A generous loft could become a home office if needed. Don’t miss the open space on the lower level.

Basement with a Theater Basement with a Theater Basement with a Theater - Front Exterior

Basement with a Theater Basement with a Theater - Main Level

Basement with a Theater Basement with a Theater - Lower Level

A cathedral ceiling in the main living areas draws the eye up and makes the space feel contemporary and fresh. Seating at the kitchen island is a welcome touch. The primary suite sits on the right side of the plan, while two secondary bedrooms (each with a walk-in closet) reside on the left.

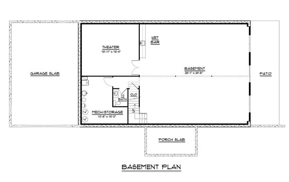
We love the handy mudroom with lockers. Fun features of the lower level include a theater, an open space with a wet bar, and a large patio.

Lots of Outdoor Living Lots of Outdoor Living Lots of Outdoor Living - Front Exterior

Lots of Outdoor Living Lots of Outdoor Living - Main Level

Lots of Outdoor Living Lots of Outdoor Living - Upper Level

Lots of Outdoor Living Lots of Outdoor Living - Lower Level

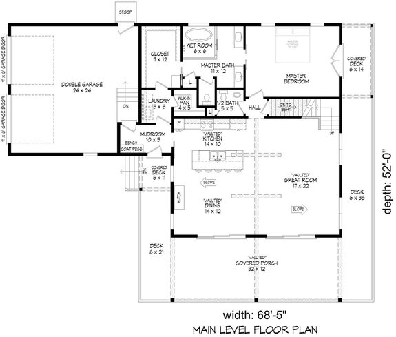
This eye-catching design delivers standout style with a striking exterior. Enjoy scenic views from the vaulted covered porch/deck. Inside, unexpected amenities include an office/loft, a mudroom with a bench, and a future in-law space on the lower level.

The island kitchen opens to the vaulted great room and the dining area. In the primary suite's bathroom, a wet room takes center stage. Upstairs, you'll find two guest rooms, one of them incredibly spacious.

Discover more barndominium with walkout basement plans.

Barndominium with Walkout Basement Plans

$1.99 Build Cost Reports!