BLOG
Our Favorites + Building Knowledge and Materials
Home>Articles

House Plans with Lofts Overlooking the Great Room

House Plans with Lofts Overlooking the Great Room
Enjoy house plans with lofts overlooking great room.

House Plans with Lofts Overlooking the Great Room

By Courtney Pittman

Looking to build a home with flexibility? Check out our house plans with lofts overlooking the great rooms. With open layouts and two-story great rooms, these designs feel fresh and contemporary. Here are eight standout designs that offer versatility and thoughtful details.

Check out our house plans with lofts collection here.

Barndominium Plan with Wraparound Porch Barndominium Plan with Wraparound Porch Barndominium Plan with Wraparound Porch - Front Exterior

Barndominium Plan with Wraparound Porch Barndominium Plan with Wraparound Porch - Main Level

Barndominium Plan with Wraparound Porch Barndominium Plan with Wraparound Porch - Upper Level

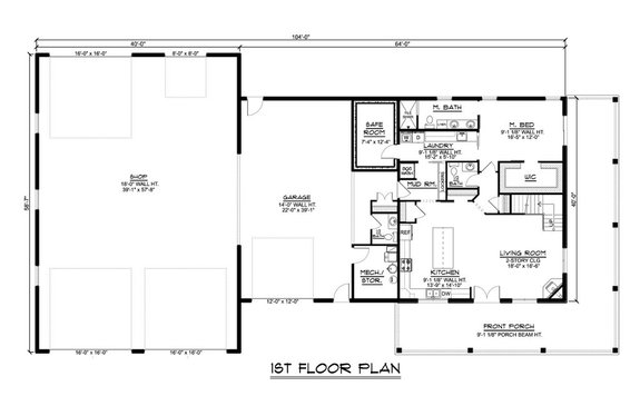
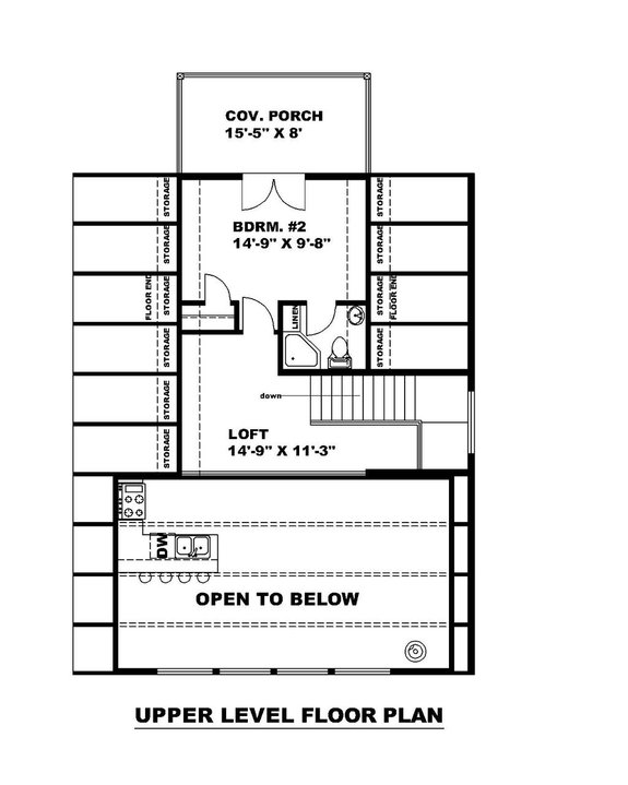
Take a look at this head-turning barndominium house plan. The open floor plan places the great room and the island kitchen together at the center of the home. Don’t miss the walk-in pantry under the stairs.

The main-level primary suite makes it easy to age in place and gives you ample closet space. Two secondary bedrooms (each with a walk-in closet) share a full bath on the second floor, along with a loft. Other highlights include the two-car garage/shop area and the wraparound porch.

Four-Car Garage and Shop Four-Car Garage and Shop Four-Car Garage and Shop - Front Exterior

Four-Car Garage and Shop Four-Car Garage and Shop - Main Level

Four-Car Garage and Shop Four-Car Garage and Shop - Upper Level

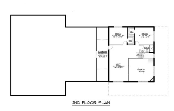
Vertical siding, a wraparound porch, and a metal roof showcase country curb appeal on this three-bedroom barndo design. There’s plenty of room for storage in the large four-car garage and shop. An island in the kitchen makes it easy to serve meals and opens to the living room.

The primary suite shows off a big closet and private access to the porch. Upstairs, a loft adds versatility and could become a home office or a game room. Special amenities include a safe room and a dog wash station in the mudroom.

Three-Bedroom Plan with Loft Three-Bedroom Plan with Loft Three-Bedroom Plan with Loft - Front Exterior

Three-Bedroom Plan with Loft Three-Bedroom Plan with Loft - Main Level

Three-Bedroom Plan with Loft Three-Bedroom Plan with Loft - Upper Level

This three-bedroom house plan offers shaded comfort with a wide front porch, while three dormer windows add bold curb appeal. The two-story great room opens to the U-shaped kitchen, where a curved eating bar seats up to four. The dining nook sits nearby.

The first-floor primary suite rests conveniently next to the laundry room in the right wing of the plan. Two more bedrooms and a hall bath await on the second level. A sleeping loft opens to the great room below. Don’t miss the grilling porch out back.

A-Frame Plan with Office A-Frame Plan with Office A-Frame Plan with Office - Exterior

A-Frame Plan with Office A-Frame Plan with Office - Main Level

A-Frame Plan with Office A-Frame Plan with Office - Upper Level

Here’s a stylish A-frame house plan with lots to love. Soaring windows draw the eye up in the main living areas. A fireplace warms the great room and delivers cozy ambiance. Sliding glass doors offer effortless indoor/outdoor living.

An office gives you a quiet place to get work done. Upstairs, the handy loft space could be used in a variety of ways.

Large Wraparound Porch Large Wraparound Porch Large Wraparound Porch - Front Exterior

Large Wraparound Porch Large Wraparound Porch - Main Level

Large Wraparound Porch Large Wraparound Porch - Upper Level

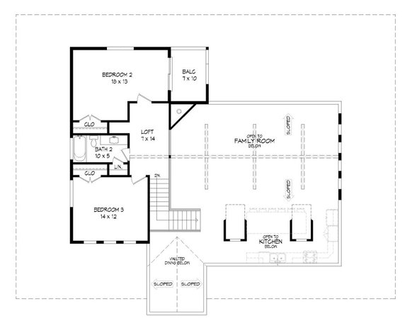
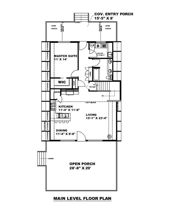
Looking for a house plan with plenty of room for outdoor living? This country-style design shows off a porch that wraps around the entire perimeter of the home – making it easy to kick back and relax. Inside, an extra-large kitchen island sits up to six and overlooks the vaulted great room.

The primary suite sits on the left side of the main level and boasts a big shower with a seat, a separate tub, and a sizable closet. On the second floor, one of the two secondary bedrooms features private access to a balcony.

Narrow Barndo Plan Narrow Barndo Plan Narrow Barndo Plan - Front Exterior

Narrow Barndo Plan Narrow Barndo Plan - Main Level

Narrow Barndo Plan Narrow Barndo Plan - Upper Level

Just 32 feet wide, this barndominium house plan would fit nicely on a tight lot. A gable roof, board-and-batten siding, and a front porch decorate the exterior. The interior feels modern and bright with an open layout that includes the vaulted great room, the island kitchen, and the eating nook. Nearby, the walk-in pantry is ready to store groceries.

A bedroom suite and a secondary bedroom sit on either side of the entry. Upstairs, the vaulted loft features a walk-in closet and a luxe bath. Take in the view on the rear covered deck.

Country Cottage Plan with Sleeping Loft Country Cottage Plan with Sleeping Loft Country Cottage Plan with Sleeping Loft - Front Exterior

Country Cottage Plan with Sleeping Loft Country Cottage Plan with Sleeping Loft - Main Level

Country Cottage Plan with Sleeping Loft Country Cottage Plan with Sleeping Loft - Upper Level

This modest country cottage comes complete with a covered front porch and a breezy open floor plan. The kitchen takes center stage with a central island. Just off the dining nook, French doors open to the rear grilling porch.

The primary suite sits on the main level for extra convenience. Two bedrooms share a hall bath on the second floor, while a sleeping loft waits close by.

Contemporary Cabin Design Contemporary Cabin Design Contemporary Cabin Design - Exterior

Contemporary Cabin Design Contemporary Cabin Design - Main Level

Contemporary Cabin Design Contemporary Cabin Design - Upper Level

Building on a budget? Here’s an A-frame cabin design with a simple footprint. The layout inside feels fresh and contemporary with an open floor plan. Sit down for casual meals at the eating bar in the kitchen.

A bedroom sits on the main level, while a bedroom suite and a loft take up space on the second level. Lots of windows and a large open porch bring the outdoors in.

Explore more house plans with lofts.

House Plans with Lofts Overlooking the Great Room

$1.99 Build Cost Reports!