By Devin Uriarte
One fantastic feature that many barndominiums have is a spacious garage. In these garages, there is often a workshop area where do-it-yourselfers can craft and build. If there’s one thing that barndominium floor plans offer, it’s additional storage space. These rustic barndominiums have charming curb appeal and open floor plans for an elevated and modern feel.
More spectacular barndominium floor plans here.
Extra Large Shop
Extra Large Shop - Front Exterior
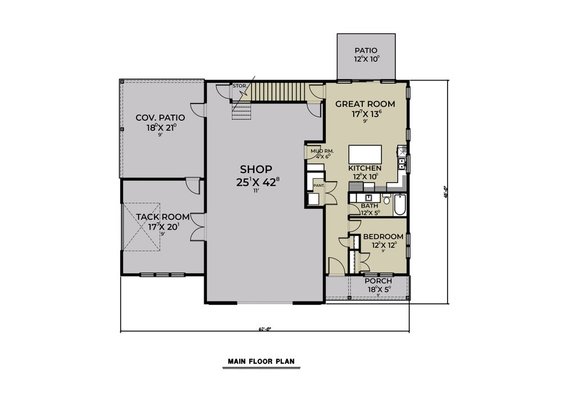
Exterior details of this barndominium like the front porch and sliding barn doors give it rustic charm barndo floor plans are known for. The sliding barn doors open to the grand workshop with a great vaulted ceiling. Do-it-yourselfers will marvel in the shop with all the open space and convenient access to the private office. This barndominium also features a two-bedroom floor plan with an open concept living room. The fireplace in the living room adds to the rustic vibe of the home and the large island in the kitchen creates a welcoming atmosphere for hosting.
Rustic Style Barndominium
Rustic Style Barndominium - Front Exterior
Rustic Style Barndominium - Main Floor
Rustic Style Barndominium - Second Floor
This barndominium is a great plan for owners wanting to expand or for first-time builders. Next to the garage/shop sits a cozy apartment with an open floor plan. To make the space feel more welcoming, there’s a covered porch at the entrance of the home. The kitchen flows seamlessly to the living room and the prep island creates a meeting point for guests.
Compact and Cozy Barndominium
Compact and Cozy Barndominium - Front Exterior
Compact and Cozy Barndominium - Main Floor
Compact and Cozy Barndominium - Second Floor
This barndominium has only 959 sq. ft. of living space but features an impressive three-car garage with space for a shop on the main floor. Upstairs from the garage and shop sits a versatile one-bedroom apartment with an open layout. Don't miss the large covered patio.
Stunning Curb Appeal
Stunning Curb Appeal - Front Exterior
Stunning Curb Appeal - Main Floor
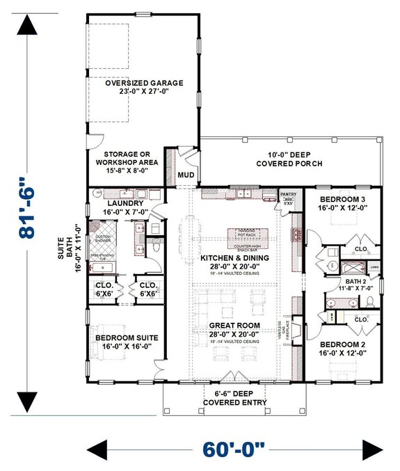
Look to this stunning barndominium with eye-catching curb appeal and a modern interior. An oversized garage sits at the rear of the plan, so it does not draw attention away from the front façade. There’s a workshop area in the two-car garage for owners who enjoy projects or just need additional storage. A thoughtful mudroom connects the garage and shop to the indoors. The interior features a modern open floor plan with lovely additions like the fireplace, double doors, and kitchen island. There are two guest bedrooms on one end of the barndominium and the primary suite at the other.
