Open-Concept 1,500 Sq. Ft. Ranch House Plans
By Devin Uriarte
If you’re dreaming of a home that blends style with functionality, a 1,500 sq. ft. open-concept ranch could be the perfect fit. Bigger than a tiny home (which may not be big enough for you, small house plans like these give a little more room but are still generally budget-friendly. Explore these layouts (each with around 1,500 sq. ft.) to find your next build.
Browse our full collection of ranch style house plans here.
Gorgeous Curb Appeal
Gorgeous Curb Appeal - Front Exterior
Gorgeous Curb Appeal - Main Floor Plan
Step inside this ranch style plan with alluring curb appeal. The mixed materials on the outside are a beautiful detail and welcome guests into the open living space. A spacious great room is the first room you’ll enter, and it leads directly to the kitchen. This open-concept space is great for hosting and the sliding glass out to the patio creates a seamless flow. At one end of the plan there are two guest bedrooms, and at the other end is the primary suite. The suite features a walk-in closet, private bathroom, and proximity to the walk-in laundry room.
Classic Ranch Plan
Classic Ranch Plan - Front Exterior
Classic Ranch Plan - Main Floor Plan*
This ranch is just shy of 1,500 sq. ft., sitting at 1,497 sq. ft. The main living area of this plan has a thoughtful open concept that even flows to the outdoors. There is a dedicated dining area directly across from the kitchen, and a walk-in pantry close by for easy access. In the great room, cathedral ceilings and a fireplace elevate the overall vibe of the room. The open concept is ideal when entertaining guests as it makes it easier for conversations to flow from room to room.
Open Layout
Open Layout - Front Exterior
This ranch has a super-simple layout and really takes advantage of every square foot. The front porch is quite impressive as there are two covered decks attached. These decks are an extremely charming detail because each connects to a bedroom. Moving back to the main living space, the grand vaulted ceiling adds to the openness. The great room flows into the kitchen, where there is an impressive island with a built-in bar top for casual dining.
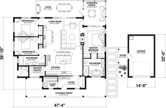
Indoor-Outdoor Flow
Indoor-Outdoor Flow - Front Exterior
Indoor-Outdoor Flow - Main Floor Plan
The details in this open-concept ranch are extremely thoughtful. Immediately upon entering the space, there is a foyer that doubles as a mudroom. The kitchen looks out to the living and dining rooms and even has a view of the patio from the double sliding glass doors. This plan utilizes its space well, an example being the built-in bench in the dining room. You'll love hosting both inside and outside, as the outdoor patio is quite spacious and is also attached to a screened porch.
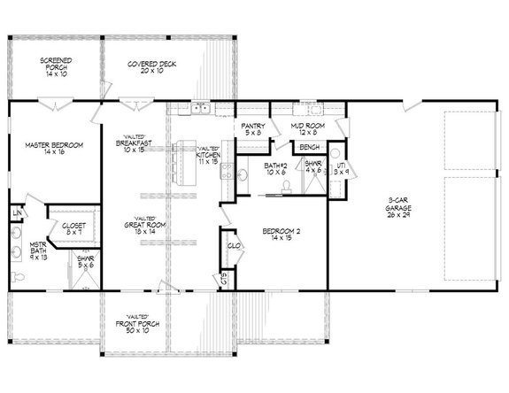
Vaulted Ceilings
Vaulted Ceilings - Front Exterior
Vaulted Ceilings - Main Floor Plan
Here is another ranch style plan with a simple layout. The open concept helps the interior feel more spacious; the vaulted ceiling adds to this. While preparing meals in the kitchen, you can simultaneously host friends and family as this space looks out to the dining room and great room. French doors next to the dining room open to the covered deck, creating seamless flow. Homeowners will especially love the French doors in the primary suite that lead to the screened porch.
Loving any of the plans you're seeing? Register now to easily save and return to your favorites!
Outdoor Hosting
Outdoor Hosting - Front Exterior
Outdoor Hosting - Main Floor Plan
Take the party outside with this ranch house plan that is a little under 1,500 sq. ft. Step out to the screened porch, deck, and patio. In the kitchen, there’s a good amount of counter space including the island, plus a skylight for brightness. Gathering in the great room will feel so comfortable with the help of the fireplace and cathedral ceiling. Speaking of gathering, hosting friends and family for dinners will be lovely in the formal (yet open!) dining area.
