Don't lose your saved plans!  Create an account to access your saves whenever you want. See our Terms & Conditions and Privacy Policy.

PLAN 1106-42

Photographs may show modified designs.

Save
  • Jump to:
  • All (8)
  • Floor plans (1)
Questions? Get Personalized Help Get Cost To Build Report Modify This Plan
Home  >  Style  >  Contemporary

Key Specs


Plan Sq Ft

800
sq ft

Plan Bedrooms

2
Beds

Plan Bathrooms

2
Baths

Plan Floors

1
Floors

Plan Garages

0
Garages

Select Plan Set Options

What's included?
Subtotal
$950.00
Best Price Guaranteed*

Also order by phone: 1-877-803-2251
 
Questions about building your home?
Get Personalized Help
We do our best to get back to you within 24 - 48 business hours.
Need an answer faster? Call now...
Phone: 1-877-803-2251
Hours:
Ready for Your Call 7 Days a Week
Every Day 7 am - 8:30 pm Eastern

See our Terms & Conditions and Privacy Policy.

 
Wow!
Cost to Build Reports
Only $1.99 Right Now
Use Code CTB2026
Our Cost to Build Report gives you a personalized estimate for building your home, based on your location, plan, and materials.
Get Cost To Build Report
Limit one per order.

Residential Construction Guide

Learn Building Basics

This downloadable, 26-page guide is full of diagrams and details about plumbing, electrical, and more.

PLAN 1106-42

This plan can be customized

Tell us about your desired changes so we can prepare an estimate for the design service. Click the button to submit your request for pricing, or call 1-877-803-2251 for assistance.

Modify This Plan

Plan Description


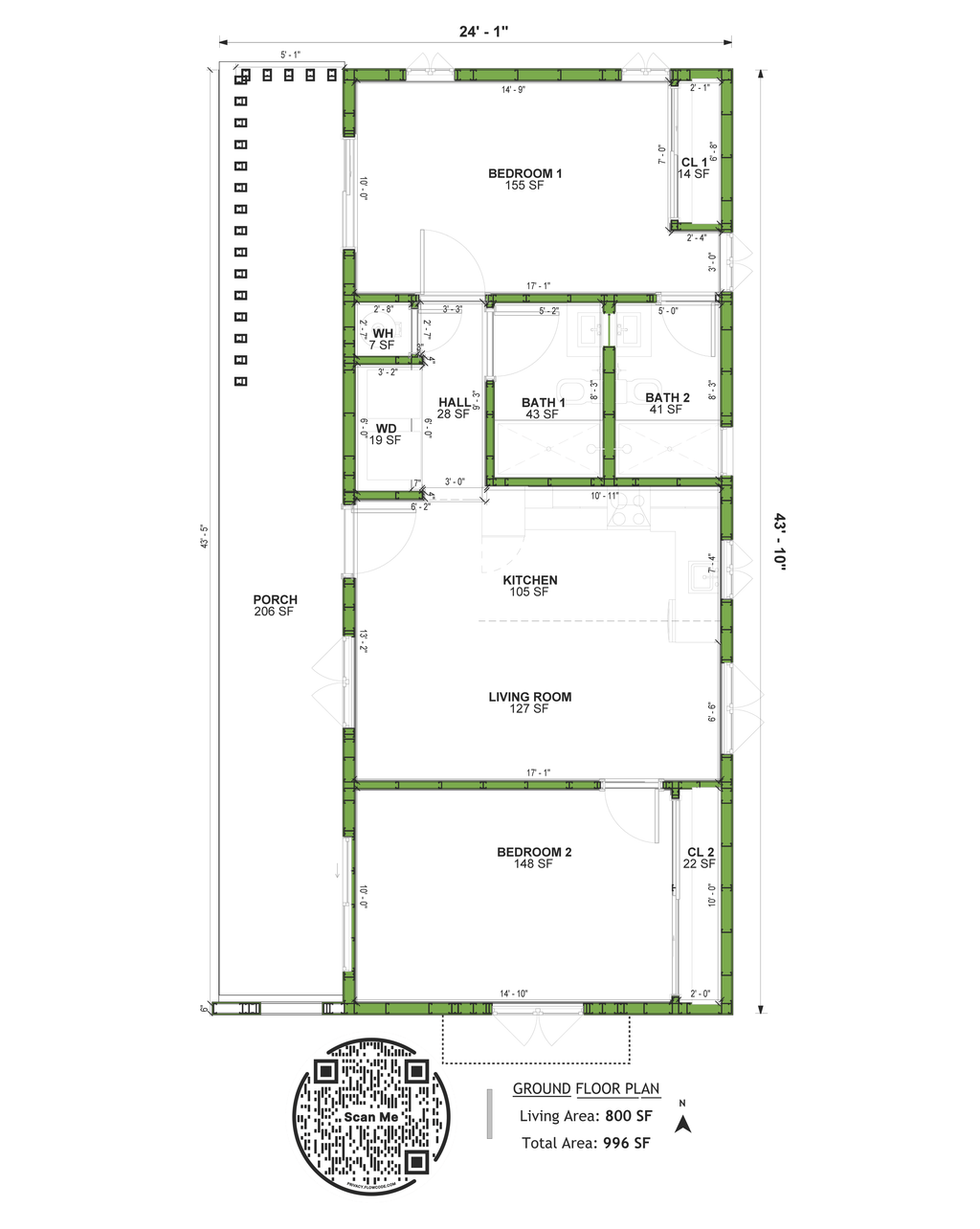
This Contemporary-style studio home is 800 sf of living space, and includes 2 bedrooms, 2 bathrooms, a kitchen, and a front and side porch - for a total of 996 sf. This plan set is engineered for steel with 2"x4" interiors/exteriors, with 2"x6" exterior steel framing available as an add-on option. While the plan shows Light Gauge Steel framing, you can also reference it to fully build in wood. Each set comes with a Comprehensive Generic-Materials Shopping List, a Lighting-Plumbing-HVAC plan, and a Building Instructions Guide. INCLUDES DETAILED TRUSS/ROOF PLAN

Full Specs & Features


Dimension

Depth : 43' 10"

Height : 11'

Width : 24' 1"

Area

Main Floor : 996 sq/ft

* Total Square Footage typically only includes conditioned space and does not include garages, porches, bonus rooms, or decks.

Ceiling

Lower Ceiling : 8'

Upper Ceiling Ft : 8' 9"

Roof

Primary Pitch : 0:12

Roof Framing : Light Gauge Steel / Cold Formed Steel

Secondary Pitch : 1/2:12

Exterior Wall Framing

Framing : Light Gauge Steel / Cold Formed Steel

Outdoor Spaces

Covered Front Porch

Covered Rear Porch

More

Economical To Build

Empty Nester

Suited For Vacation Home

Energy Efficient Features

Energy Efficient Design

What's Included In This Plan Set


All plans are drawn at ¼” scale or larger and include :

  • Foundation Plan: This page shows all necessary notations and dimensions including support columns, walls, and excavated/unexcavated areas.
  • Exterior Elevations: Views of the home from all four sides showing exterior materials and measurements.
  • Floor Plan(s): Detailed plans for each level showing room dimensions, wall partitions, windows and doors, etc.
  • Cross Section: A slice of the home from roof to foundation, showing important details like stairs and wall construction.
  • Overhead Roof Plan(s): A view of the home from above showing roof pitch, peaks, valleys, and other details.
  • Construction Notes and Details: Shows the builder how things come together, like walls, the chimney, insulation, and more.
» See important information before purchasing.
Questions? Call 1-877-803-2251

Plan Set

PDF Set:
$950.00
PDF plan sets are best for fast electronic delivery and inexpensive local printing.

Foundation

Slab:
$0.00
Ideal for level lot, single layer concrete poured directly on grade.

Framing

Metal (PEMB):
$0.00
Designed for use as a PEMB (Pre-Engineered Metal Building) using Z8 metal framing with insulated panels on the exterior and 2x4" studs for the interior.
Wood 2x4:
$0.00
Wood 2x4 Exterior Walls
Wood 2x6:
$300.00
Wood 2x6 Exterior Walls

Additional Options

* Alternate Foundations may take time to prepare.

** Options with a fee may take time to prepare. Please call to confirm.

Unless you buy an “unlimited” plan set or a multi-use license you may only build one home from a set of plans. Please call to verify if you intend to build more than once. Plan licenses are non-transferable and cannot be resold.
Coupon Codes