By Devin Uriarte
Open concept floor plans can make even a modest amount of square footage feel spacious. These house plans make good use of 1,500 sq. ft. and each features three bedrooms. The highlight of having an open concept living space is the overall improvement of flow between rooms, which ultimately elevates the entertaining experience.
More spacious small house plans here.
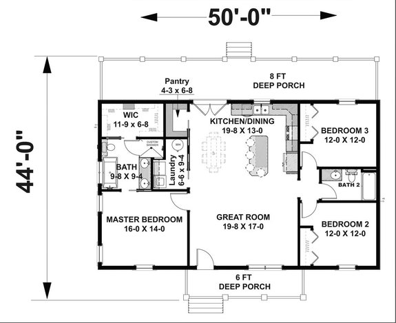
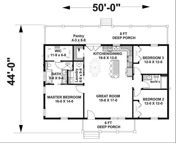
Open-Concept Barndominium
Open-Concept Barndominium - Front Exterior
Open-Concept Barndominium - Main Floor
Here's a 1,500 sq. ft. barndominium with a super-spacious garage and workshop. Through the laundry room that’s attached to the garage is the open-concept living space. The kitchen is quite impressive with a built-in bar top for casual dining. Owners can look out from the kitchen and chat with guests lounging in the great room. There are two guest bedrooms and a lovely primary suite with a full bathroom and walk-in closet.
Cozy Cottage
Cozy Cottage - Front Exterior
This super-cozy cottage has a welcoming porch that opens to the open-concept living space. The great room effortlessly flows into the dining room and kitchen. French doors open to the rear porch, which creates great indoor-outdoor flow. Hosting in this 1,500 sq. ft. plan is ideal with the open kitchen and island with seating. In the primary bedroom there is a striking bathroom with a large walk-in closet. In addition to the primary suite there are two guest bedrooms.
Two-Story House Plan
Two-Story House Plan - Front Exterior
Two-Story House Plan - Main Floor
Two-Story House Plan - Second Floor Plan
Two-Story House Plan - Basement Floor Plan
The exterior of this 1,500 sq. ft. house plan boasts modern curb appeal, while a unique layout with the living spaces upstairs takes advantage of a view lot. A prep island in the kitchen adds definition to the two rooms while still maintaining that sense of togetherness. There’s a cozy breakfast nook that looks out to the balcony from stunning large windows. Owners can achieve great indoor-outdoor flow by opening the sliding glass door out to the upper balcony. The two guest bedrooms sit on the second level floor plan while the third bedroom is on the first level.
What makes this plan unique are the many open entertaining spaces. The main level features a flex space that can easily be transformed into a media room or private den. There’s also an open basement with an attached patio for hosting outdoors.
Stunning Curb Appeal
Stunning Curb Appeal - Front Exterior
Stunning Curb Appeal - Main Floor
Now this 1,500 sq. ft. house plan offers some seriously elevated curb appeal. The intricate details of the front porch create a welcoming vibe for visitors. There are two sets of double doors that open to the luxurious open-concept great room with trayed ceilings and a cozy fireplace. (Another set opens to a guest room.) The great room effortlessly flows into the kitchen and dining room. Owners will especially love the prep island and pantry for additional storage. For those warmer nights, owners can easily host outdoors on the rear porch.
At one end of the house plan there are two guest bedrooms. The primary suite sits at the opposite end of the plan for optimal privacy. In the primary suite, owners will enjoy the spacious walk-in closet and full bathroom with a relaxing tub.
