BLOG
Our Favorites + Building Knowledge and Materials
Home>Articles

Open Concept 4 Bedroom Ranch House Plans

Open Concept 4 Bedroom Ranch House Plans
Check out these open concept 4 bedroom ranch house plans.

By Courtney Pittman

Open concept 4 bedroom ranch house plans offer way more than curb appeal. Think walk-in closets, big islands in the kitchen, great outdoor spaces, and more. These well-designed plans give you streamlined layouts on one convenient level.

Explore our collection of ranch house plans here.

Country Ranch House Plan Country Ranch House Plan Country Ranch House Plan - Front Exterior

Country Ranch House Plan Country Ranch House Plan - Main Level

Here’s a ranch house plan that delivers lots of room for outdoor living. For example, a screened porch is ready for relaxation, while protecting you from weather elements. Don’t miss the generous front and rear porches. Inside, an island in the kitchen features seating for six and opens to the vaulted great room.

Tucked away in the right wing of the plan, the primary suite shows off a spacious closet, a freestanding tub, a separate shower, and dual sinks. Other smart amenities include a side-loading two-car garage and a roomy pantry.

Ranch Plan with Barndominium Style Ranch Plan with Barndominium Style Ranch Plan with Barndominium Style - Front Exterior

Ranch Plan with Barndominium Style Ranch Plan with Barndominium Style - Main Level

This ranch house plan grabs your attention with barn-style curb appeal. At the center of the home, the main living areas are open and relaxed, with a kitchen island overlooking the dining area and the great room. Sliding glass doors open to a back porch, bringing the outdoors in.

There’s plenty of room for grocery storage in the large pantry. The primary suite gives you a spacious private bathroom and access to the back porch. Three more bedrooms and a hall bath sit on the right side of the plan. Special details include a handy mudroom with a bench and a closet, a two-car garage, and a spacious laundry room.

Ranch House Plan with Outdoor Kitchen Ranch House Plan with Outdoor Kitchen Ranch House Plan with Outdoor Kitchen - Front Exterior

Ranch House Plan with Outdoor Kitchen Ranch House Plan with Outdoor Kitchen - Main Level

Loaded with amenities, this ranch house plan shines with a hardworking layout. The great room, the dining nook, and the kitchen flow into one another with ease. Here’s a cool detail: a wall of sliding glass doors opens to the covered lanai, which features an outdoor kitchen.

Complete with two-walk in closets and an extra-big walk-in shower, the upscale primary suite is brimming with luxury. A versatile study could become a home office or a game room. The three-car garage offers plenty of room for storage.

Traditional Style Ranch Plan Traditional Style Ranch Plan Traditional Style Ranch Plan - Front Exterior

Traditional Style Ranch Plan Traditional Style Ranch Plan - Main Level

Here’s a ranch floor plan that gives you tons of flexibility with plenty of thoughtful details. The kitchen takes center stage with a generous island and lots of counter space. Nearby, the breakfast nook and the keeping room open to a fireplace-warmed screened porch. The luxurious primary suite impresses with two water closets, an extra-big closet with an island, a walk-through shower with a seat, and a standalone tub.

Three more bedroom suites rest on the left side of the plan. A mudroom with lockers is a welcome amenity. Don’t miss the butler’s pantry, the cool coffee bar, and the four-car garage.

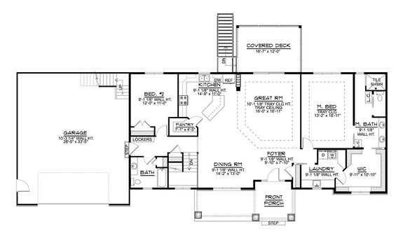
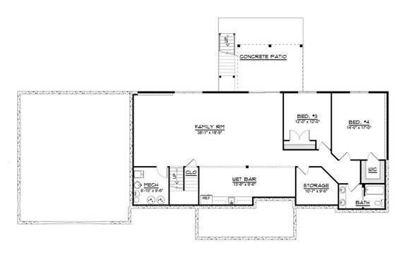
Ranch Plan with Basement Ranch Plan with Basement Ranch Plan with Basement - Front Exterior

Ranch Plan with Basement Ranch Plan with Basement - Main Level

Ranch Plan with Basement Ranch Plan with Basement - Lower Level

It doesn’t get much more open than this floor plan. The great room, the dining area, and the kitchen share one large space. An angled island with a snack bar offers seating for relaxed meals.

The main-level primary suite enjoys privacy on the right side of the plan and gives you direct access to the laundry room. The lower level includes a flexible family room, a huge wet bar, a storage closet, two secondary bedrooms, and another bathroom.

Contemporary Ranch Floor Plan Contemporary Ranch Floor Plan Contemporary Ranch Floor Plan - Front Exterior

Contemporary Ranch Floor Plan Contemporary Ranch Floor Plan - Main Level

Sleek and contemporary, this ranch floor plan gives you clean lines and four bedrooms. A large island in the kitchen serves the great room. Corner sliding doors open to a super-spacious covered lanai, where you’ll find an outdoor kitchen and a pool bath.

Near the foyer, a den adds versatility and could be used as a home office or a hobby room. Highlights of the primary suite include two walk-in closets, a deluxe shower (with two shower heads), and access to the rear lanai. Storage in the three-car garage is a welcome touch.

Ranch Plan with Versatile Game Room Ranch Plan with Versatile Game Room Ranch Plan with Versatile Game Room - Front Exterior

Ranch Plan with Versatile Game Room Ranch Plan with Versatile Game Room - Main Level

With an optional outdoor kitchen on the rear porch, this ranch house plan gives you plenty of room to enjoy outdoor living. A vaulted ceiling draws the eye up in the great room. Check out the hardworking utility room and the mudroom with lockers. The flexible game room could be used in a myriad of ways. Stylish barn doors open to a handy e-space.

Here’s a thoughtful touch: the walk-in pantry boasts a counter and built-in shelves. We love the custom walk-through shower in the primary suite. Three bedrooms (one a suite) occupy the right side of the plan.

Ranch Design with Mudroom Ranch Design with Mudroom Ranch Design with Mudroom - Front Exterior

Ranch Design with Mudroom Ranch Design with Mudroom - Main Level

Everything is well-organized in this ranch house plan, starting with the mudroom with lockers. Nearby, the big pantry is ready to hold groceries. The kitchen shows off a sizable island and opens to the great room. A spa-like bath awaits you in the impressive primary suite. Two of the three secondary bedrooms give you walk-in closets.

Discover more ranch house plans.

$1.99 Build Cost Reports!