BLOG
Our Favorites + Building Knowledge and Materials
Home>Articles

Modern A Frame Plans for Your Perfect Vacation Home

Modern A Frame Plans for Your Perfect Vacation Home
These cabin designs feel fresh and contemporary.

By Aurora Zeledon

Chalet chic? More like mountain modern. These modern A Frame house plans look great in any season and give you many opportunities to enjoy the view.

See More A Frame House Plans Here.

What's an A Frame Home?

Before we dive into the plans, what's an A Frame home? It's a house with a steeply pitched roof, sometimes extending all the way to the ground. Most of these designs showcase more modest As. Importantly for a scenic location, they usually give you large windows that show off the view.

So What's a Modern A Frame House Plan?

Because A Frame home designs look pretty modern already with their large windows and clean lines, the differences can be subtle. The plans we're showcasing in this blog feature very open layouts, comfortable main suites (with private bathrooms, since the last thing you want to do on vacation is wait for the bathroom to be free), and other thoughtful amenities.

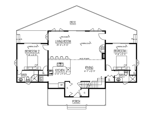
Here's an A Frame Cabin with a Wraparound Porch House Design - Exterior - Rear Elevation for Craftsman House Plan #124-1242 - 4 bed, 3 bath Modern A Frame House Plan with Wraparound Porch - Exterior

This one encourages you to get outside and enjoy the nice mountain weather. Take your morning coffee out to the deck, which wraps around all sides of the house and is covered for much of it, or simply sit inside and admire the view from the great room's walls of windows.

House Design - Modern A Frame Plans for Your Perfect Vacation Home Modern A Frame House Plan with Wraparound Porch - Main Level

Take a look at how open the main living spaces feel. The kitchen's island and its bar will become the hangout zone for your friends and family. Two bedrooms down here hold visitors.

House Design - Modern A Frame Plans for Your Perfect Vacation Home Modern A Frame House Plan with Wraparound Porch - Upper Level

Upstairs is where this plan really stands out. Your private suite up here showcases a super-spacious bedroom, a walk-in closet, and a bathroom with two sinks, a shower, and a relaxing tub.

What if I Want an A Frame that's Affordable to Build? House Design - Exterior - Front Elevation for Country House Plan #126-235 - 2 bed, 2 bath Affordable A Frame House Plan - Exterior

Affordability is subjective, of course. But a smaller size and simpler footprint will generally help keep costs down. This small cabin plan gives you just over 1,000 sq. ft. of living space. You still get a private bathroom for the main suite upstairs, along with French doors that open to a private deck. Imagine the sunsets!

House Design - Modern A Frame Plans for Your Perfect Vacation Home Affordable A Frame House Plan - Main Level

On the main floor, the open layout flows outside at several points to the large covered porch.

House Design - Modern A Frame Plans for Your Perfect Vacation Home Affordable A Frame House Plan - Upper Level Upstairs, let's take a look at that suite. See the French doors leading out to the deck? Attic storage is another plus.

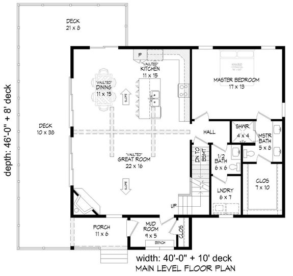
How About a Cabin with 3 Bedrooms? House Design - Exterior - Front Elevation for Country House Plan #932-568 - 3 bed, 3.5 bath 3 Bedroom A Frame House Plan - Exterior

We've got you covered. Check out this stunning design for a sloping lot. A mudroom connected to the porch (which leads to the impressive deck) keeps hiking boots and other gear from cluttering up the main gathering areas.

House Design - Modern A Frame Plans for Your Perfect Vacation Home 3 Bedroom A Frame House Plan - Main Level

Take a look at how open that layout feels. Have you ever cooked in a vacation rental's cramped kitchen? You'll have a very different experience here, with the large island and plenty of counter space. Speaking of space, check out the huge closet in the main suite. You could fit a lot of sundresses, shorts, or even ski outfits in there.

House Design - Modern A Frame Plans for Your Perfect Vacation Home 3 Bedroom A Frame House Plan - Upper Level

There's another big suite upstairs, so you've got a choice of where to sleep. Perhaps you take this one while your visiting relatives take the downstairs one?

Affordable A Frame with Ensuite House Design - Exterior - Front Elevation for Cabin House Plan #126-188 - 3 bed, 2 bath Affordable A Frame with Ensuite - Exterior

Here's another nice one if you're building on a tight budget. The simple, narrow footprint of the home doesn't require a big piece of land on which to build.

House Design - Modern A Frame Plans for Your Perfect Vacation Home Affordable A Frame with Ensuite - Main Level

Inside, you've got a private bathroom for the main suite. Here's a nice touch: the large laundry room opens out to a porch, making it easy to take dogs for a walk from here, where you can stash leashes and such.

House Design - Modern A Frame Plans for Your Perfect Vacation Home Affordable A Frame with Ensuite - Upper Level

A couple of extra bedrooms upstairs give you room for guests, with a small deck up there as well.

Bold A Frame with Modern Curb Appeal House Design - Exterior - Front Elevation for Cottage House Plan #1070-57 - 3 bed, 2 bath A Frame House Plan with Dark Color Scheme - Exterior

What makes this A frame feel a bit more modern than the others? It's got to be the dark color scheme, which feels decidedly cooler than the usual warm tones you see in cabin designs. Of course, you can paint your A frame home any color you want. But we like picturing it like this.

House Design - Modern A Frame Plans for Your Perfect Vacation Home A Frame House Plan with Dark Color Scheme - Main Level

The main level is all about easy flow to outside, with French doors opening to the spacious deck. Take a look at how open the great room and kitchen feel.

House Design - Modern A Frame Plans for Your Perfect Vacation Home A Frame House Plan with Dark Color Scheme - Upper Level

Your private suite sits upstairs. Enjoy the private five-piece bathroom and your own deck. Take a book out here to read and enjoy the view on a nice day.

A Cabin Plan with the Main Suite Downstairs House Design - Exterior - Front Elevation for Cabin House Plan #124-1183 - 2 bed, 2 bath Cabin Plan with Main Bedroom on the Main Floor - Exterior

What if you don't want to climb a lot of stairs in your new vacation home? Here's an A frame house plan with the main suite on the main level.

House Design - Modern A Frame Plans for Your Perfect Vacation Home Cabin Plan with Main Bedroom on the Main Floor - Main Level

All of the primary living spaces are easy to reach on the first floor, including the guest bedroom. Not all cabin plans have a garage, but this one does. Here's a great detail: the pocket office for occasional working from home.

House Design - Modern A Frame Plans for Your Perfect Vacation Home Cabin Plan with Main Bedroom on the Main Floor - Upper Level

Upstairs, a loft that's open to the great room below can become your relaxing reading area.

Clean-Lined Cabin Design with Room for Guests

House Design - Exterior - Rear Elevation for Contemporary House Plan #1061-8 - 3 bed, 3 bath A Frame with Modern Style - Exterior

A lot of cabin house plans make your guests stay in tiny rooms. This one treats your family and friends to more space.

House Design - Modern A Frame Plans for Your Perfect Vacation Home A Frame with Modern Style - Main Level

The first guest room is located on the main floor and features direct access to the deck. Meanwhile, you get a private main suite (yes, with your own bathroom) that also lets you step out to the deck.

House Design - Modern A Frame Plans for Your Perfect Vacation Home A Frame with Modern Style - Upper Level

Upstairs, the second guest room enjoys use of the nearby bathroom and a versatile loft.

See More A Frame House Plans Here.