Floorplans.com

Questions about this plan? Visit Floorplans.com today or call 1-877-803-2251

View plan at /plan/3496-square-feet-5-bedroom-3-5-bathroom-4-garage-country-52661

Plan 17-2738
3496 sq/ft
5 beds
3.5 baths
89' 10" wide
61' 6" deep
Plan QR Code
Pricing
Plan Set
PDF Set
$1200.00
5 Copy Set
$1300.00
5 Copy and PDF Set
$1550.00
CAD Set
$2400.00
Foundation
Crawlspace
+$0.00
Slab
+$0.00
Basement
+$299.00
Daylight Basement
+$299.00
Framing
Wood 2x4
$0.00
Wood 2x6
$299.00
Right-Reading Reverse
Each
+$299.00
Additional Construction Sets
Each Additional Set
+$80.00/each
Audio Video Design
Each
$165.00
Comprehensive Material List
Each
$395.00
Construction Guide
Each
$39.00
Lighting Design
Each
$165.00
Roof Framing Detail
Each
$149.00

Full Specs & Features


Dimension
Depth : 61' 6"
Height : 27' 4"
Width : 89' 10"
Area
Bonus: 680 sq/ft
First Floor: 2631 sq/ft
Second Floor: 865 sq/ft
Storage: 1611 sq/ft
*Total Square Footage only includes conditioned space and does not include garages, porches, bonus rooms, or decks.
Roof
Primary Pitch : 9:12
Roof Framing : Combination Truss/Conventional
Roof Type : Shingle
Exterior Wall Framing
Exterior Wall Finish : Brick
Framing : Wood - 2x4
Bedroom Features
Fireplace
Formal Dining Room
Main Floor Master Bedroom
Walk In Closet
Kitchen Features
Breakfast Nook
Kitchenette Wet Bar
Additional Room Features
Den Office Study Computer
Exercise Room
Family Room Keeping Room
Great Room Living Room
Hobby Rec Room Game Room
Loft
Main Floor Laundry
Storage Area
Vaulted / Cathedral Ceilings
Garage Features
Side Entry Garage
Outdoor Spaces
Balcony
Covered Front Porch
Deck
Rooms

Bathroom 2:

50 sq/ft width 10' 2" x depth 5'

Bedroom 2:

149 sq/ft width 14' x depth 10' 8"

Bedroom 4:

197 sq/ft width 15' x depth 13' 2"

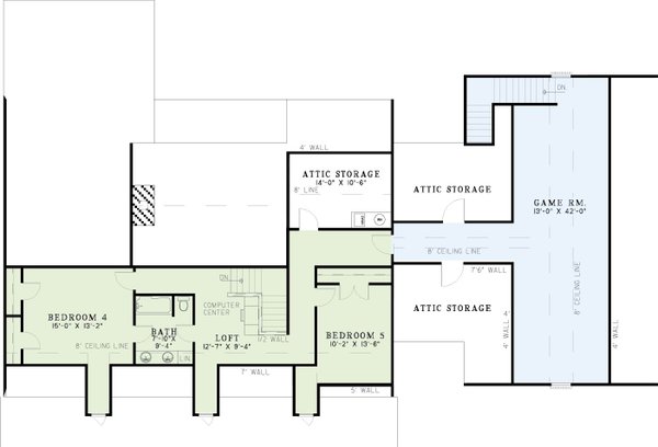
Bedroom 5:

137 sq/ft width 10' 2" x depth 13' 6"

Breakfast Room:

182 sq/ft width 14' x depth 13'

Deck:

278 sq/ft width 42' 10" x depth 6' 6"

Dining Room:

168 sq/ft width 14' x depth 12'

Foyer:

193 sq/ft width 14' 4" x depth 13' 6"

Garage:

1120 sq/ft width 26' 8" x depth 42'

Great Room:

349 sq/ft width 21' 2" x depth 16' 6"

Laundry Room:

116 sq/ft width 9' 8" x depth 12'

Master Bathroom:

556 sq/ft width 20' x depth 27' 10"

Master Bedroom:

280 sq/ft width 17' x depth 16' 6"

Study:

101 sq/ft width 9' 6" x depth 10' 8"

Floor Plan - Main Floor

House Design - Country Floor Plan - Main Floor Plan #17-2738

Floor Plan - Upper Floor

House Design - Country Floor Plan - Upper Floor Plan #17-2738
Floorplans.com
Questions about this plan? Visit Floorplans.com today or call 1-877-803-2251
View this plan at /plan/3496-square-feet-5-bedroom-3-5-bathroom-4-garage-country-52661

In addition to the house plans you order, you may also need a site plan that shows where the house is going to be located on the property. You might also need beams sized to accommodate roof loads specific to your region. Your home builder can usually help you with this. You may also need a septic design unless your lot is served by a sanitary sewer system. Many areas now have area-specific energy codes that also have to be followed. This normally involves filling out a simple form providing documentation that your house plans are in compliance.

To find out what documents you should expect with your house plans, see /help/faq#faq13.

In some regions, there is a second step you will need to take to insure your house plans are in compliance with local codes. Some areas of North America have very strict engineering requirements. Examples of this would be earthquake-prone areas of California and the Pacific Coast, hurricane risk areas of the Florida, Gulf & Carolina Coasts. New York, New Jersey, Nevada, and parts of Illinois require review by a local professional as well. If you are building in these areas, it is most likely you will need to hire a state licensed structural engineer to analyze the design and provide additional drawings and calculations required by your building department. If you aren’t sure, building departments typically have a handout they will give you listing all of the items they require to submit for and obtain a building permit.

Additionally, stock plans do not have a professional stamp attached. If your building department requires one, they will only accept a stamp from a professional licensed in the state where you plan to build. In this case, you will need to take your house plans to a local engineer or architect for review and stamping. In addition, plans which are used to construct homes in Nevada are required to be drawn by a licensed Nevada architect.

Note: All sales on house plans are final. No refunds or exchanges can be given once your order has been fulfilled or once we have begun to customize a home plan to your specifications.